スライドドア式2130シングル防音室は、一般的な家庭用のサイズのグランド(奥行きが200センチまでのグランドピアノ)に最適な防音室です。横幅も十分あってグランドピアノを余裕をもって演奏できます。
夜間の練習は夜の8時ぐらいまで可能な防音性能をもっています。
Dr−35の防音性能は国内他社の防音室では高級水準の性能です。
ですが夜間の遅い時間では周囲が静かになってくるので暗騒音が減り、相対的に防音性能が足らないということになるのです。弦楽の合奏などにも十分なスペースがあります。
防音室の栗田楽器
http://www.pianoya.net/
防音室ご購入までの手順
スライドドア式防音室2130シリーズ 
防音室お見積もりチェックシートのダウンロード のページへGO!
よくある質問 防音室 FAQ
資料請求
高性能でしかも低価格なのだ
ファックスご利用の方は↓
フォームメールで
資料請求
できます→
サウンドジャパン防音室の特徴↓
あなたのへやに防音室を置いたら・・・
防音室の
設置イメージ
基本仕様とオプション
●2130シングル グランドピアノ サックス トランペット トロンボーンの合奏などに
夕方8時ぐらいまでのグランドピアノの防音に。 実は国内他社の防音室の高水準品が
このDr−35です。ということは・・・
 
 2130シングル1205s  1,570,000円(+税)
 遮音性能 Dr-35  組立費運送費別 地域によって変わります
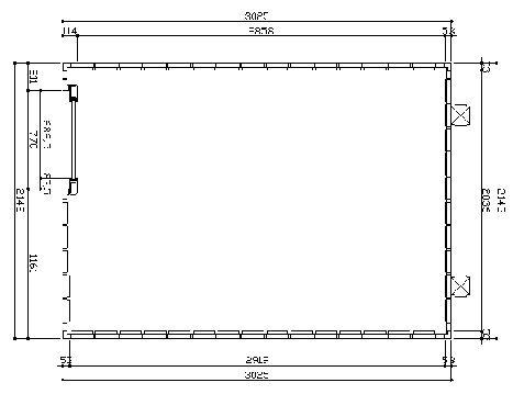
 外寸 2142(W)×3025(D)×2230(H)  内寸 2036(W)×2919(D)×2044(H)
拡大
※セミオーダー サイズダウン サイズアップ 一番近いサイズの防音室から
本体価格の20%UPで
引き受けます。※ダブルモデルは本体価格の20%UPでドラム専用に変更出来ます。
※高さの変更オーダー
本体価格の20%UPで
引き受けます。
仕様別価格表
組立式防音室
ドラム専用
防音室1.6畳
防音室2.75畳
防音室4畳
防音室3.3畳
防音室4.4畳
防音室4.8畳
防音室5.12畳
防音室7.3畳
防音室10畳
防音室41.3畳
梁避けなど注文タイプ
システムブース
防音室設置例
オプション
音室価格一覧表 
全体図