●真夜中でもアップライトピアノが弾ける防音性能!1915ダブル コンパクトな防音室です。小型アナウンスブース サックス トランペット トロンボーンなどの深夜の練習に 使用します。2重構造のパネルで出来ています。
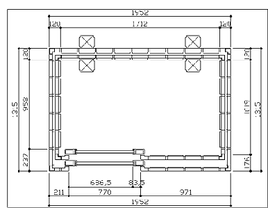
下の図面をみてください。スライドドアのためアップライトピアノをギリギリ収容しても大丈夫なのです。(ドアだと内側に開いてピアノにぶつかる)下の図の換気装置の位置ではなくピアノを置く場合は換気装置は側面に移動できます。
防音室の栗田楽器
http://www.pianoya.net/
防音室ご購入までの手順
スライドドア式防音室1915シリーズ 
防音室お見積もりチェックシートのダウンロード のページへGO!
1915シングル 702s  739000(+税)
 遮音性能 Dr-35  組立費運送費別 地域によって変わります
 外寸 1952w×1315D×2200H  内寸 1816w×1338×2044H
●1915シングル よる8時台ぐらいまでのピアノの防音のために設計されています。バイオリン フルート 声楽などはかなり夜遅くでも大丈夫です。トランペットサックス トロンボーンの練習にも適しています。
よくある質問 防音室 FAQ
 
 
 1915ダブル 1193s  1276000(+税)
 遮音性能 Dr-50  組立費運送費別 地域によって変わります
 外寸 1952w×1505×2200H  内寸 1712w×1219D×1910H

↑テレビ新潟さま1913ダブル

資料請求

テレビ新潟さま
ブース工事

高性能でしかも低価格なのだ
ファックスご利用の方は↓
フォームメールで
資料請求
できます→
防音室価格一覧表
サウンドジャパン防音室の特徴↓
あなたのへやに防音室を置いたら・・・
防音室の
設置イメージ
基本仕様とオプション
拡大する
拡大する
※セミオーダー サイズダウン サイズアップ 一番近いサイズの防音室から
本体価格の20%UPで
引き受けます。
※ダブルモデルは本体価格の20%UPでドラム専用に変更出来ます。
※高さの変更オーダー
本体価格の20%UPで
引き受けます。
仕様別価格表
組立式防音室
ドラム専用
防音室1.6畳
防音室2.75畳
防音室4畳
防音室3.3畳
防音室4.4畳
防音室4.8畳
防音室5.12畳
防音室7.3畳
防音室10畳
防音室41.3畳
梁避けなど注文タイプ
システムブース
防音室設置例
オプション
全体図